ZIMMERMANN-INGENIEURE GMBH i.L.

Sanierung Kur und Kongreßhaus, Berchtesgaden

Bauherr: Tourismusverband Königssee Berchtesgaden
Architekt: ARGE Magg Wimmer, Freilassing/Berchtesgaden
THKLS-Planung: Zimmermann-Ingenieure, Freilassing
Planung: : März 2012 – Oktober 2015
Ausführung BA 1: 2014, BA 2: 2015 bis März 2016
Bausumme: ca. 8 Mio €


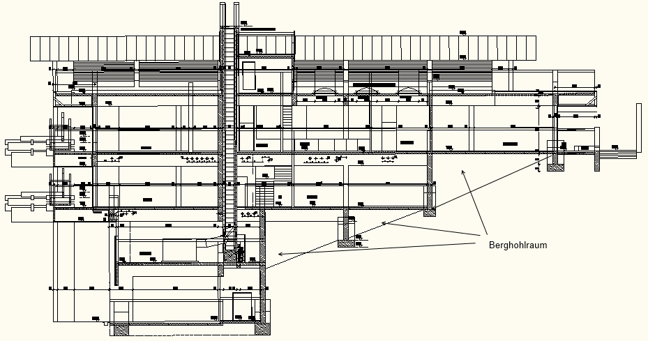
Der eingekreiste Bereich ist die Technikzentrale








                                                                                                                                                                                                                                                                                                                                                                                                                                                           

Zimmermann-Ingenieure GmbH | Augustinerstraße 3 | 83395 Freilassing | Telefon 08654 48195-0 | Fax 08654 48195-19
gang